发布时间:2023-05-22 17:13:00 浏览次数:

产品说明
直线振动筛利用振动电机激振作为振动源,使物料在筛网上被抛起,同时向前作直线运动,物料从给料机均匀地进入筛分机的进料口,在振动电机的激振下向前方边跳动、边筛分,通过多层筛网产生数种规格的筛上物、筛下物、分别从各自的出口排出。具有耗能低、产量高、结构简单、易维修、全封闭结构,无粉尘溢散,自动排料,更适合于流水线作业。
使用范围
对粉状、颗粒状物料的筛选和分级,广泛应用于塑料、磨料、化工、医药、建材、粮食、炭素、化肥等行业。

技术参数

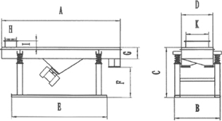
外形尺寸

注:表内尺寸按1-3层筛图型尺寸
★本公司可根据用户需要而设计制造各种型号规格的筛机。
★本公司对技术资料、尺寸保留修改的权利,如实物与文中图案不符,应以实物为准,解释权归本公司。